George Brown Campus Map – University Relations’ Web Operations team created and maintains the UAB Campus Map website. Please use the “Feedback” button in the lower left to inform us of needed corrections or to tell us what you . Our Interactive Campus Map allows you to get detailed information on buildings, parking lots, athletic venues, and much more – all from your computer or mobile device. You can even use the Wayfinding .
George Brown Campus Map
Source : weather.com
GBC Safety โ Apps on Google Play
Source : play.google.com
Location & Venues | WordCamp Toronto 2012
Source : toronto.wordcamp.org
George Brown College Casa Loma Campus Map: Ingress portal
Source : outgress.com
Waterfront campus expansion approved by Toronto City Council The
Source : dialognews.ca
George Brown College Campus Map (St. James Campus) โ Jelly Brothers
Source : www.jellybrothers.com
Lonely College Guide The Dialog
Source : dialognews.ca
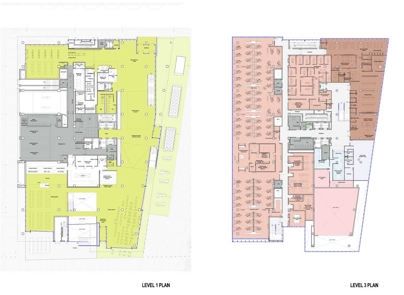
A AS ARCHITECTURE: GEORGE BROWN COLLEGE WATERFRONT CAMPUS BY
Source : aasarchitecture.blogspot.com
Waterfront campus expansion approved by Toronto City Council The
Source : dialognews.ca
Minister of Advanced Education and Skills Development to Make an
Source : news.ontario.ca
George Brown Campus Map George Brown College Going Green with 12 Storey Wood Building : George Brown College announced today that it has purchased the Corus Quay building to expand its Toronto waterfront campus. The joint real-estate venture, with equity partner Halmont Properties . George Brown, co-founder of Kool & the Gang and the band’s longtime drummer, has died. He was 74. Brown died Thursday in Los Angeles after a battle with cancer, according to a statement released .








